only search Studio Kalamar
  projects information home slo
 
 
 
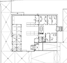
KAESER PRODUCTION FACILITY
 
 

Location: Maribor, Slovenia
area: 700 m2
client: Kaeser d.o.o.
type: production
status: under construction

 
     
 

 

 

projects
 
by year
 
by status
completed
under construction
current
unbuilt
concept
 
by type
public
housing
housing elderly
office
production
retail
hotels
sports
sacral
urban complex
public space
urban infrastructure
masterplan
interior
product design
stage design
 
awards
publications
 
contact
Studio Kalamar d.o.o.
Slovenska 19
1000 Ljubljana
Slovenia

Tel.: +386 1 2410 470

studio@kalamar.si
 

Website contents © Studio Kalamar, 2026