preišči samo Studio Kalamar
  projekti info na začetek eng
 
 
 
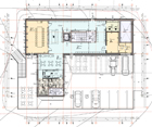
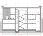
VINSKA KLET PIŠECE
 
 

lokacija: Pišece
površina: 1.760 m2
tip: javni, proizvodni
status: v delu

 
 

 

projekti
 
kronološko
 
status
izvedeni projekti
projekti v gradnji
projekti v delu
neizvedeni projekti
idejni projekti
 
tip
javni
stanovanjski
stanovanjski za starejše
poslovni
proizvodni
trgovski
hoteli
šport
sakralni
urbani kompleks
javni prostor
mestna infrastruktura
urbanizem
interier
oblikovanje predmetov
scenografija
 
nagrade
objave
 
kontakt

Studio Kalamar d.o.o.
Slovenska 19
1000 Ljubljana
Tel.: +386 1 2410 470
studio@kalamar.si

 
 

Vsebina spletne strani © Studio Kalamar, 2026